Home   |   Referenzen   |   Schulen und Sportstätten

Schulen und Sportstätten


BIP Kreativitätszentrum GmbH

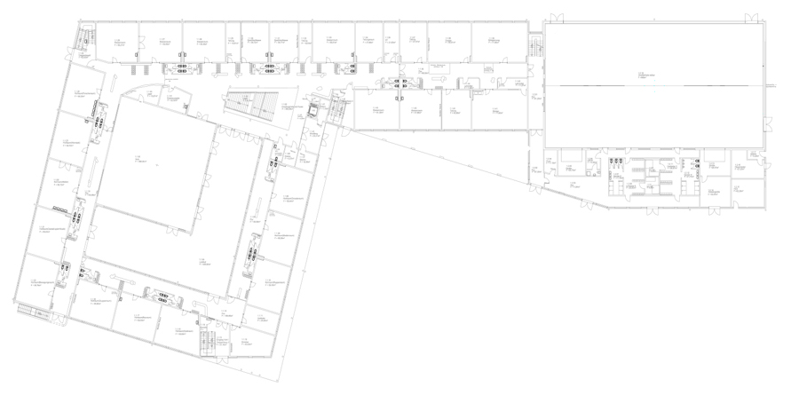
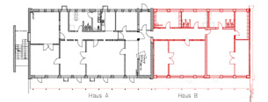
Umbau und Sanierung Schule Johannesstrasse zum BIP-Kreativitätszentrum Haus A und B


Auftraggeber:
BIP Kreativitätszentrum GmbH

Johannesstrasse 18
17034 Neubrandenburg
Ansprechpartner - Geschäftsführerin Frau Wolff,
Telefon 03 95/ 4 51 27 65

Objektbeschreibung:
Das bestehende Schulgebäude wird grundsätzlich saniert. Aufgrund der starken Verschleißerscheinungen wird das Haus B abgerissen und neu erbaut.

Haustechnik:
- Wärmeerzeugung erfolgt über eine Gas-Brennwerttherme
- zentrale Warmwasserbereitung
- Fußbodenheizung in den Gruppenräumen im Erdgeschoss
- kreativ gestaltete sanitäre Einrichtungsgegenstände

Baukosten Haustechnik: 375.000,00 EUR
Planungszeitraum: 07/2009 - 06/2010
Ausführungszeitraum: ab 09/2010
Planungsumfang: Ausführungsplanung Heizung, Lüftung, Sanitär
0
0 0
 


BIP Kreativitätszentrum GmbH

Umbau und Sanierung Schule Johannesstrasse zum BIP-Kreativitätszentrum - Energetische Sanierung


Auftraggeber:
BIP Kreativitätszentrum GmbH

Johannesstrasse 18
17034 Neubrandenburg
Ansprechpartner - Geschäftsführerin Frau Wolff,
Telefon 03 95/ 4 51 27 65

Objektbeschreibung:
Sanierung – Fenster und Fassade (gefördert durch europäische Union)

Haustechnik:
- Fassaden- und Fenstersanierung nach Standard ENEV 2009
- Einbau zentraler Verschattung und Sonnenschutzsysteme
- Aufbau einer 800m² großen Photovoltaikanlage

Baukosten Fassade: 353.300,00 EUR
Baukosten Fenster: 290.900,00 EUR
Planungszeitraum: 07/2009 - 06/2010
Ausführungszeitraum: ab 09/2010
Planungsumfang: Ausführungsplanung Fassade, Fenster
0
 


Klinikum Neubrandenburg

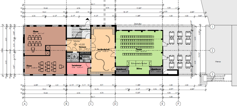
Neubau Comenius Grundschule mit Sporthalle, Freianlagen, Spiel- und öffentlich genutzten Außensportanlagen


Bauherr:
Stadt Oranienburg

Schlossplatz 1
16515 Oranienburg
Tel. 03301 / 600-5

Objektbeschreibung:
Die Grundidee des Gebäudekomplexes ist die architektonische Konzeption einer kleinen „eigenen Stadt“. Die Ausbildung in 2 Geschossen erzeugt kurze Wege nach draußen und bietet möglichst vielen Klassen einen direkten Zugang nach draußen mit Terrassen.
Bei der Flächenzonierung wurde auf Trennung von Schule und Hort geachtet, auch die Sporthalle funktioniert separat auch für außerschulische Nutzungen.
Im Innenhofbereich entsteht entsteht ein heller Aularaum.

Das Gebäude wurde als Passivhaus konzipiert. Die kompakte Aussenhülle ist hochwärmegedämmt unter Verwendung passivhaustauglicher Verglasung.

Heizung: - bivalentes Heizsystem-Brennwerttechnik
- Grundheizung erfolgt über Wärmepumpe
- Fußbodenheizung für Aulabereich
- Beheizung Turnhalle über Deckenstrahlplatten
- Klassen-Horträume, Sozialtrakt über örtliche Heizflächen
Lüftung: - getrennt Lüftungsanlagen für jeden Nutzungsteil
  mit Wärmerückgewinnung
- Einzelraumregelung über Temp.-Fühler, Präsentmelder
  und Luftqualitätsfühler
Sanitär: - teilweise barrierefreie Ausstattung
- Essenausgabe im Aulabereich
- Hygienespülung gegen Legionellenbildung


Baukosten Heizung: 540.000,00 EUR
Baukosten Sanitär: 320.000,00 EUR
Baukosten Lüftung: 435.000,00 EUR
Baukosten Regelung: 60.000,00 EUR
Baukosten Starkstrom: 540.000,00 EUR
Baukosten Schwachstrom: 180.000,00 EUR
0
0
 


BIP Kreativitätszentrum GmbH

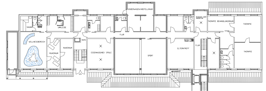
Umbau und Modernisierung KITA „Am Sattelplatz“ in Neubrandenburg


Auftraggeber:
AWO KV Neubrandenburg e.V.

Feldmark 1
17033 Neubrandenburg
Ansprechpartner - Herr Dr.Fischer
Tel. 03 95/7 77 56 20

Objektbeschreibung:
Das Gebäude wurde teilweise entkernt und bestehende Anlagen komplett demontiert.
Besonderheit ist die Umgestaltung des Sockelgeschosses mit Wellnessbereich und Sauna.
Heizungsseitig erfolgt die Versorgung über Fernwärme mit Anschluß an bereits vorhandene HA-Station.

Baukosten Haustechnik: Heizungsanlage: 132.000,00 EUR
Sanitäre Anlage: 115.000,00 EUR
Planungszeitraum: IV/2007 – III/2008
Ausführungszeitraum: IV/2008 - I/2010
0
0 0
 


Neubau Kindertagestätte “Schritt für Schritt e.V.” in Rostock


Bauherr:
EuSiB gGmbH

Europäische Stiftung für innovative Bildung
Kopernikusstr. 16
18057 Rostock

Objektbeschreibung:
Die EuSiB g GmbH bildet das Dach, welches unter sich den Kindergarten der Werkstattschule, den Hort für Kinder der Werkstattschule sowie die Grundstufen 1 und 2 der Werkstattschule beherbergt.
Der alte Baukörper wurde abgerissen und die Kita neu erbaut.
Heizungstechnisch erfolgt Fernwärmeversorgung.

Baukosten Haustechnik: 210.000,00 EUR
Planungszeitraum: 2006
Ausführungszeitraum: 2006 - 2007
0
 


Werkstattschule in Rostock

Neubau WiR Werkstattschule in Rostock


Bauherr:
EuSiB GmbH

Europäische Stiftungfür innovative Bildung
Kopernikusstr. 16
18057 Rostock

Objektbeschreibung:
Durch einen Freien Träger wurde eine neue Gesamtschule errichtet.
Der besondere Charakter des Gebäudes liegt im globaleren und freier gestalteten Unterricht mit großen Augenmerk auf polytechnische Fähigkeiten. Dadurch wurden sehr hohe Anforderungen an die räumliche und technische Flexibilität gestellt.

Vom technischen Ausstattungsgrad ist die Schule am obersten Level angelegt und hat einen hohen technischen Kommunikationsgrad.

Hervorzuheben ist die Photovoltaikanlage auf dem Dach (800-1000m²) zwecks Betriebskostensenkung sowie Nutzung der Umweltenergie. Heizungstechnisch wird das Gebäude über Fernwärme versorgt.

Baukosten Haustechnik: 1.030.000,00 EUR
Planungszeitraum: 2003 - 2005
Ausführungszeitraum: 2004 - 2005
0
0 0
 


Werkstattschule in Rostock

Umbau, Sanierung und Neubau „Stella“ Bildungszentrum Neubrandenburg Robert-Blum-Strasse 17034 Neubrandenburg


Auftraggeber:
Internationaler Bund
Freier Träger der Jugend- Sozial- und Bildungsarbeit e.V.

Valentin-Senger Strasse 5
60389 Frankfurt/Main
Ansprechpartner - Herr Türpitz
Tel. 03 95 / 36 94 930

Objektbeschreibung:
Der neue, 3-geschossige Schulkomplex ist nach modernsten Gesichtspunkten geplant und als sich entwickelndes Dorf konzipiert worden. Beide Schulgebäude (Alt- und Neubau) sowie die Turnhalle werden so verbunden das sie eine Einheit bilden.

Haustechnik
Die heizungstechnische Versorgung erfolgt über Fernwärme. Das Rohrleitungsnetz wird im nicht sichtbaren Bereich verlegt. Die Unterrichtsräume im Erdgeschoss-Neubau werden mit Fußbodenheizung ausgestattet. Die Mensa wird über eine Lüftungsanlage mit Wärmerückgewinnung voll klimatisiert. Für die beiden Treppenhäuser im Altbau (Fluchtwege) wurde eine Rauch-verdrängungsanlage (Süla) konzipiert, im Brandfall werden die Treppenhäuser mit Überdruck versehen, so dass der Rauch nicht in den Fluchtwegbereich dringen kann.

Baukosten Heizung/Lüftung: 375.000,00 €
Baukosten Sanitär: 175.000,00 €
Baukosten Nutzungsspez. Anlagen: 80.000,00 €
Baukosten Elektrotechnik: 470.000,00 €
Planungszeitraum: seit 03/2010 (Haustechnik)
Ausführungszeitraum: 07/2010 – 08/2011
0
0 0
 


Werkstattschule in Rostock 

Erweiterung Werkstattschule in Rostock


Auftraggeber:
EuSiB gGmbH

Europäische Stiftung für innovative Bildung
Kopernikusstr. 16
18057 Rostock
Ansprechpartner - Herr Pahl
Telefon 03 81/4 90 29 20

Objektbeschreibung:
Durch einen Freien Träger wurde eine neue Gesamtschule errichtet.
Durch den Erweiterungsbau wird die Schüler- und Lehreranzahl nicht erhöht, lediglich mehr Lern- und Bewegungsraum für die Schüler geschaffen.

Der technische Ausstattungsgrad wird voll dem der Gesamtschule angepasst.
Auf der Dachfläche wird ebenfalls eine Photovoltaikanlage vorgesehen.

Baukosten Haustechnik: 172.000,00 EUR
Planungszeitraum: 10/2010 – 03/2011
Ausführungszeitraum: 10/2011 – 12/2012
0
0 0
 


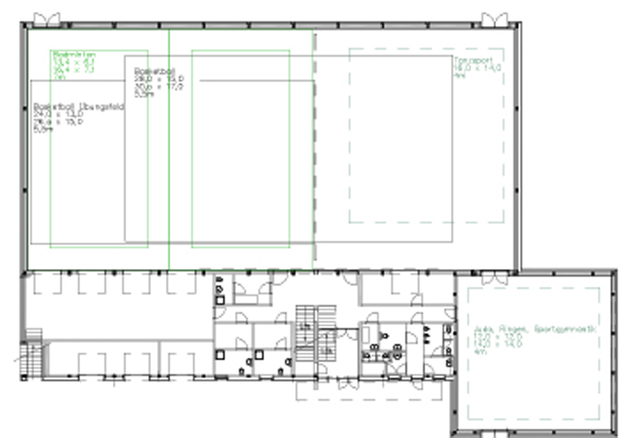
Neubau einer Zweifeld-Spiel-/Sporthalle und Gymnastikhalle in Geesthacht


Auftraggeber:
Stadt Geesthacht

Markt 15
21502 Geesthacht
Ansprechpartner
Frau Riedel
Tel. 0 41 52/1 32 38

Objektbeschreibung:
- Heizungsseitige Versorgung über eine gasbetriebene
  Wärmeerzeugungsanlage
- Beheizung der beiden Hallenbereiche über Strahlplattenheizung
  in geschlossener Paneeldecke
- Be- und Entlüftung der Gymnastikhalle sowie des Sanitärtraktes
  jeweils über zentrale separate Kompaktlüftungsgeräte mit
  Rotationswärmetauscher
- Zentrale Warmwasserbereitung unter Beachtung der thermischen
  Desinfektion

Baukosten Haustechnik: 630.000,00 EUR
Planungszeitraum: 2006
Unsere Leistungen: - Heizungs- Sanitäranlage,Lüftungsanlage
- Techn. Außenanlagen
- Stark- u.Schwachstrom
0
0 0
 


Sanierung Sporthalle Datzeberg 17034 Neubrandenburg 


Auftraggeber:
Treuhänderischer Sanierungsträger

Stadtentwicklungsgesellschaft Neubrandenburg
Oelmühlenstrasse 4
17033 Neubrandenburg

Objektbeschreibung:
Neuplanung der einzelnen Gewerke nach neuesten Standard und Vorschriften, EneV

Heizung:
Die Zwei-Feld-Halle sowie Gymnastikhalle sollten über Deckenstrahlplatten beheizt werden.

Sanitär:
Hauptaugenmerk wurde auf die Legionellenbekämpfung gelegt

Lüftung:
Integrierung der Lüftungsanlage in den Hallen in die Paneeldecke bzw. Deckenstrahlheizung. Auslegung der Anlage mit maximaler Wärmerückgewinnung.

Baukosten Haustechnik: 480.000,00 EUR
Planungszeitraum: II - III/2008
Unsere Leistungen: Vorplanung, Heizung, Lüftung, Sanitär
0
0 0 0
 


Ernst-Haeckel-Gymnasium Werder (Havel) Neubau Sporthalle 

Ernst-Haeckel-Gymnasium Werder (Havel) Neubau Sporthalle


Auftraggeber:
Stadt Werder (Havel) - Der Bürgermeister

Eisenbahnstrasse 13/14
14542 Werder (Havel)

Objektbeschreibung:
Neuplanung der einzelnen Gewerke nach neuesten Standard und Vorschriften, EneV

Heizung:
Die Beheizung des Hallenbereiches erfolgt über FB-Heizung, der Sozialtrakt über statische Heizflächen.

Sanitär:
Hauptaugenmerk wurde auf die Legionellenbekämpfung gelegt

Lüftung:
Integrierung der Lüftungsanlage für den Sozialtrakt. Auslegung der Anlage mit maximaler Wärmerückgewinnung.

Baukosten Haustechnik: 480.000,00 EUR
Planungszeitraum: 2008
Unsere Leistungen: Ausführungsplanung Heizung, Lüftung, Sanitär
0
0 0
 


stadt_zehdenick

Turnhallensanierung Grundschule Mildenberg


Auftraggeber:
Stadt Zehdenick

Falkenthaler Chaussee 1
16792 Zehdenick

Objektbeschreibung:
Komplette Sanierung der Turnhalle und somit auch der Heizungs-, Lüftungs- und Sanitäranlage sowie Elektroanlage.

- zentrale Warmwasserbereitung
- Lehrer-/ Trainer-WC
- Entlüftung der WC-Räume

Baukosten Haustechnik: 172.000,00 EUR
Planungszeitraum: 09/2009 - 11/2009
Bauzeitraum: 12/2009 - 06/2010
Unsere Leistungen: Ausführungsplanung Heizung, Lüftung, Sanitär
0
0 0
 


Werkstattschule in Rostock

Oberschule Templin Energetische Sanierung Schulsporthalle


Auftraggeber:
Landkreis Uckermark
Bau- und Liegenschaftsamt

Karl-Marx-Straße 1
17291 Prenzlau
Ansprechpartner
Herr Lestin
Telefon 0 398 4/ 70 29 65

Objektbeschreibung:
Komplette Sanierung der Turnhalle und somit auch der Heizungs-, Lüftungs- und Sanitäranlage mit Hauptaugenmerk auf neueste energetische Anforderungen

- Beheizung des Hallenbereiches über Deckenstrahlplatten
- Be- und Entlüftungsanlage für Sozialteil mit Wärmerückgewinnung
- Ausstattung der Sanitär- und Umkleideräume nach hygenischen
  Anforderungen

Baukosten Haustechnik: 175.000,00 EUR
Planungszeitraum: 01/2010 - 08/2010
Bauzeitraum: 01/2010 - 08/2010
Unsere Leistungen: Ausführungsplanung Heizung, Lüftung,
Sanitär, EnEV
0
0 0