Home   |   Referenzen   |   Gesundheitseinrichtungen

Gesundheitseinrichtungen


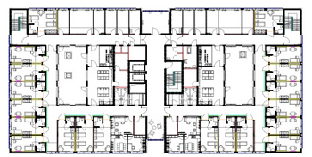
Klinikum Neubrandenburg

Klinikum Neubrandenburg Neubau Bettenhaus - Haus 12


Bauherr:
Dietrich-Bonhoeffer-Klinikum

Neubrandenburg
Salvador-Allende-Str. 30
17036 Neubrandenburg
Tel. 03 95/ 7 75 22 00 - Herr Drobek

Objektbeschreibung:
Die Errichtung des Bettenhauses erfolgte als Modulbauweise, d.h. zeitgemäße Stahlbauweise mit geringer Gesamtbauzeit und Flexibilität durch unkomplizierte Möglichkeiten der Erweiterung durch Ankoppeln von Segmenten.

Unsere Leistungen:
- Planung und Bauleitung für die Technische Erschließung
- Zeitraum 2004 - 2005, Kostenvolumen 440.000,00 EUR

- Bauleitung, Qualitätsmanagement, Sigeko für die gesamte Haustechnik
- Zeitraum2005 - 2006, Kostenvolumen 2.500.000,00 EUR
0
0 0
 


Klinikum Neubrandenburg

Haus D (14) - Umbau Dialyse - Ergänzungsbau


Bauherr:
Dietrich-Bonhoeffer-Klinikum

Neubrandenburg
Salvador-Allende-Str. 30
17036 Neubrandenburg
Tel. 03 95/ 7 75 22 00 - Herr Drobek

Objektbeschreibung:
Der Erweiterungsbau der Dialyse befindet sich auf dem Gelände des Diakonie Klinikums Dietrich-Bonhoeffer in Neubrandenburg. Das Gebäude ist eingeschossig und der Erweiterungsbau grenzt an das bestehende Gebäude an. Die haustechnische Versorgung erfolgt vom vorhandenen Gebäudeteil aus. Hauptaugenmerk wurde sanitärseitig auf die Hygienespülung (Vermeidung Legionellen) gelegt.

Baukosten: 95.200,00 EUR brutto
Planungszeitraum: Juli - August 2011
Planungsumfang: Heizung, Sanitär, medizinische Gase
0
0 0
 

Klinikum Neubrandenburg

Haus H - Neubau Psychiatrie


Bauherr:
Dietrich-Bonhoeffer-Klinikum

Neubrandenburg
Salvador-Allende-Str. 30
17036 Neubrandenburg
Tel. 03 95/ 7 75 22 00 - Herr Drobek

Objektbeschreibung:
Das Haus H befindet sich auf dem Gelände des Diakonie Klinikums Dietrich-Bonhoeffer und schliesst unterirdisch an den bestehenden Verbindungsgang zwischen Haus G und Haus Z an.
Es ist teilunterkellert und mit drei oberirdischen Geschossen geplant.
Zur Verbesserung der Belichtung sind zwei nicht überdachte Innenhöfe vorgesehen.

Nutzung:
Ebene 01 - haustechn.Zentralen,Lagerräume, Personalumkleideräume
Ebene 0   - Ärzte, U/B- sowie Therapieräume, Klinikleitung sowie Tagesklinik
Ebene 1   - Geronto-psychiatrische sowie geschlossene Station mit Bettenzimmern
Ebene 2   - 2 psychiatrische Stationen mit Bettenzimmern


Haustechnik:
Heiz./Sanitär: Versorgung aus den vorhandenen Heiz- bzw. Kaltwassernetzen über Verteiler in Ebene 01, WWB über Speicherladesystem
Lüftung: Die Nutzbereiche werden über 2 im Keller installierte Teilklimaanlagen jeweils für den rechten und linken Bereich vom Hauptflur versorgt. Die kombinierten Zu- und Abluftgeräte mit Wärmerückgewinnung sind in Hygieneausführung als Teilklima-Gerät mit Kühler und Nachheitzer geplant.
Med.Gase: Versorgung mit Sauerstoff u. Druckluft (5 bar) über Anschluss an vorh. Netz im Kellergang Bereich Haus C / Haus T.


Kosten HLS: 905.620,00 EUR brutto
Kosten Med.Gase: 38.500,00 EUR brutto
Kosten Elektro: 1.040.000,00 EUR brutto
Planungszeitraum: 2010 - 2011
Bauleitung: 2012
0
0 0
 


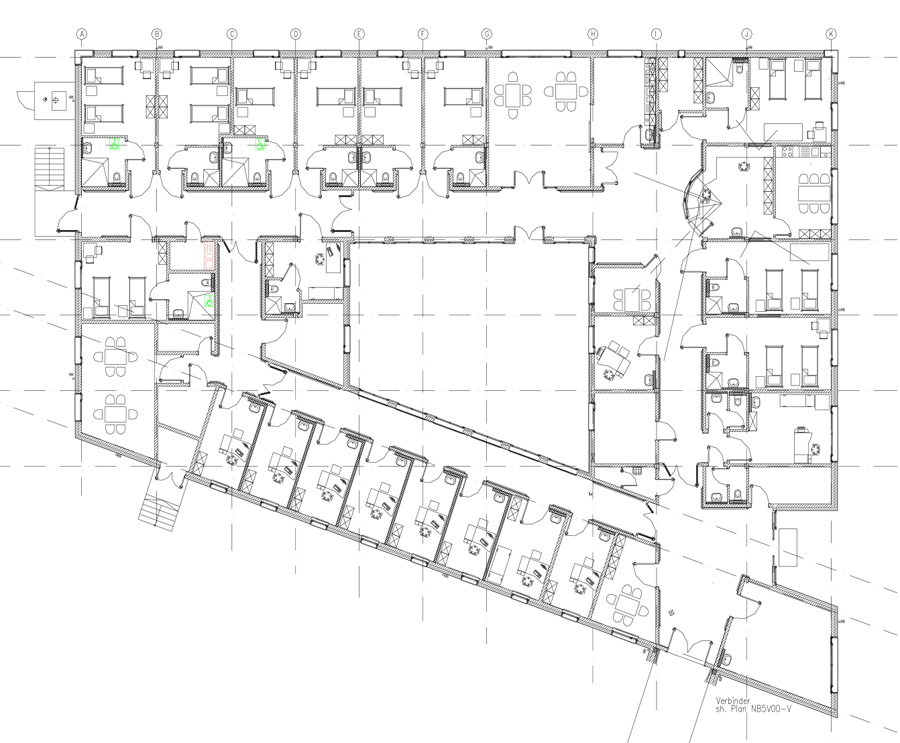
Klinikum Neubrandenburg

Neubau und Sanierung - Krankenhaus Malchin


Bauherr:
Krankenhaus Malchin GmbH

Basedower Straße 33
17139 Malchin

Objektbeschreibung:
Altbestand - 3 Gebäudeteile
- unter Denkmalschutz stehender Hauptteil
- Anbau aus den 30er Jahren in L-Form (Abriss)
- Kopfbau aus den 60er Jahren als Eingangsbereich

1.Bauabschnitt
Neubau eines Bettenhauses mit 4 Stationen, 122 Betten, Physiotherapie im Kellergeschoss.

2. Bauabschnitt
Sanierung des Altbaues, welcher die Funktionsabteilungen Röntgen, OP, Funktionsdiagnostik, Küche und die Verwaltung beherbergt

Baukosten Haustechnik: 3.600.000,00 EUR
Planungszeitraum: 1999 - 2004
Ausführungszeitraum: 2002 - 2005
0
0 0
 


Klinikum Neubrandenburg 

Neubau Akutstation Psychiatrie Röbel / Müritz


Bauherr:
Mediclin-Müritz-Klinikum

Weinbergstrasse 19
17192 Waren
Tel. 03991 / 772002 - Herr Zeitz, TL

Objektbeschreibung:
Im Zuge des Neubau der Akutstation im Gesamtkomplex Psychiatrie Röbel wurden verschiedene bautechnische Massnahmen auf dem Gelände durchgeführt, so war auch Leistungsumfang die Erneuerung der Heizungsanlage (2-Kessel-Anlage) unter Einbeziehung alternativer Energiequellen im vorhandenen Heizhaus. Die Warmwasserversorgung erfolgt somit über Solarenergie, das überschüssige Warmwasser wird zur Heizungsunterstützung verwendet.

Akutstation:
- Raumheizung durch Röhrenradiatoren
- Fussbodenheizung in den Bettenzimmern einschl. Nasszelle
- Einzellüftung der einzelnen Funktionsräume durch Deckenluftgeräte
  bzw. Luftelemente in den Aussenwänden
- Teilklimatisierung (Heizung+Kühlung) der Bettenzimmer durch Splitgeräte
  (raumweise Anordnung)



Baukosten Haustechnik: Akutstation 388.800,00 EUR
Heizhaus 163.000,00 EUR
Unsere Leistungen: Planung: 2010
Bauleitung: 2011-2012
0